Pyhäpii Duetto 210 -paritalo
Pyhätunturin rinnetontille räätälöity paritalopaketti
Olen kiinnostunut tästä mallista
Pyhäpii Duetto 210 -paritalopaketti
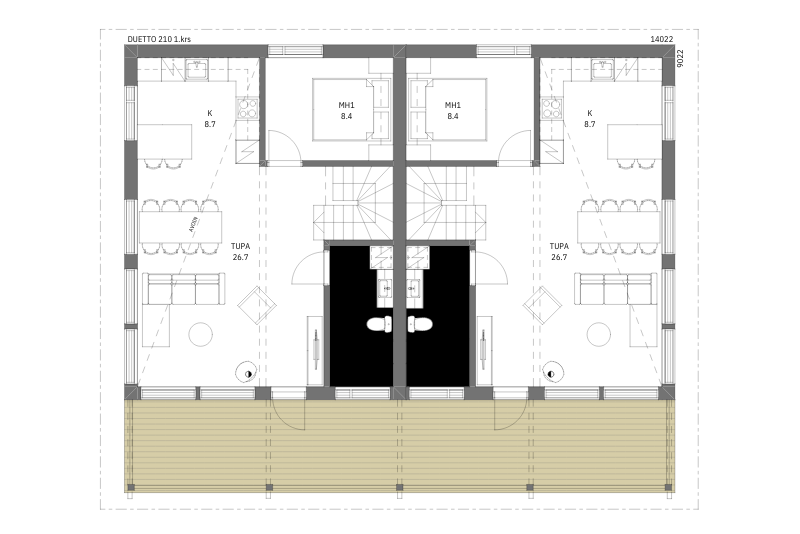
Rinnetontille räätälöity Pyhäpii Duetto 210 rakentuu kellarikerroksen päälle, jolloin talo nousee maiseman yläpuolelle.
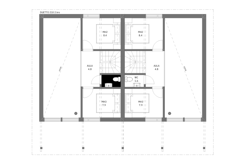
Talossa on kaksi 1,5 kerroksen huoneistoa sekä kellarikerros, jossa on tilaa saunaosastolle, varastolle ja autopaikalle. Pääkerroksessa on tilava olohuone-keittiö, yksi makuuhuone ja kylpyhuone. Parvella on tilaa kahdelle makuuhuoneelle, aulatilalle ja WC:lle.
PolarHousen lämpöhirrestä valmistettu hirsitalopaketti tarkoittaa talotoimitusta, jossa lämpöhirsitalon elementit valmistetaan kuivissa tehdasolosuhteissa ja toimitetaan rakennuspaikalle valmiina kokonaisuuksina. Lue lisää PolarHousen lämpöhirrestä.
Kerrosala
2 x 101,1 m²
Huoneistoala
2 x 93,2 m² + kellarin aputilat 33,4 m²
Kuvia toteutuneista kohteista Pyhätunturilla
Olemme toteuttaneet Pyhätunturille useampia loma-asuntoja. Lue lisää toteutuneista kohteista: Villa Astelista ja Pyhätunturin hulppeasta huvilasta.
Unelmasi toteutetaan meillä
Meille jokainen valmistuva koti, mökki tai huvila on jonkun oma unelma, jonka turvaajina haluamme kasvaa ja kehittyä pohjoisen Euroopan parhaiksi. Jutellaan lisää, millainen on sinun unelmasi.
Ota yhteyttä

